대구 서구 중리동 신축 공장창고 임대 기계·금속·포장·물류·자동화·다용도 창고형 제조업 추천 중리동 월세 중리동 공장 창고 감삼역(2호선) 사무실1개 / 화장실1개 지상 : 1층 / 지하 : -층
매물번호:10093
방문자수 오늘 413 / 전체 853,735
문의전화 010-3841-1007
매물번호 10093
매물번호 10093
  • 매물 정보
  • 매물 설명
  • 주변 교통정보
  • 위치 및 주변시설
  • 다른 매물
  • 담당자 정보
평으로 변환
맨 위로 이동
맨 아래로 이동
대구 서구 중리동 신축 공장창고 임대 기계·금속·포장·물류·자동화·다용도 창고형 제조업 추천
보증금12,000월세1,200만원
대구 서구 중리동
매물 종류 공장 창고
대지면적 1818㎡ 550평
층고 -
층정보 지상 : 1층 / 지하 : -층
매물 정보
주소
대구 서구 중리동
거래 유형
월세
매물 종류
공장 창고
보증금
1억2,000만
월세
1,200만원
관리비
없음
면적정보
대지 1,818㎡ 550평 / 연 1,104㎡ 334평
층정보
지상 : 1층 / 지하 : -층
방향
동향 (주된 출입구 기준)
주용도
공장
매물상태
비어있음
사무실 / 화장실
1 개 / 1 개
주차
5 대
엘리베이터
-
화물용 엘리베이터
-
테마 종류
물류창고,기계공장
입주가능일
즉시입주
사용승인일
24.10.1
매물 설명

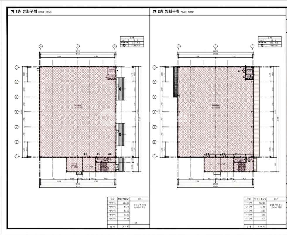
1. 공장기본정보

위치: 대구광역시 서구 중리동

용도: 공장 및 창고 겸용 (신축)

대지면적: 1,818㎡ (550)

건축면적: 1,104㎡ (334)

연면적: 1,104㎡ (334)

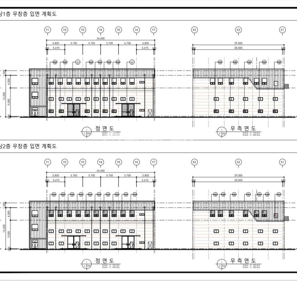
층수/층고: 1층 전체 / 9m

사용승인일: 신축 진행중  (11월중)

방향: 코너 도로 접함 (12m×6m 도로폭)

주차: 약 10대 이상 가능

엘리베이터(화물): 유

기타: 서대구IC 5분 거리, 넓은 마당 및 화물차 진입로 확보

  

2. 설비 및 인프라

전기 용량: 사용승인 후 확정 예정

호이스트: 크레인 설치 가능

추가 설비: 야적장 확보, 대형차 진입 가능, 물류 이동 동선 우수

  

3. 추천 업종 및 활용 가능성

기계·금속·포장·물류·자동화·다용도 창고형 제조업 등

입주 가능일: 신축 완료 후 협의

협의 조건: 임대료 조율 가능

  

4. 주변 환경 및 교통 접근성

산업단지/주변: 대구 서부권 핵심 산업지대

도로망/IC 접근: 서대구IC 차량 5분 거리, 코너 입지로 접근성 탁월

기타: 인근 주요 도로 및 산업단지와 연계성 우수

보증금: 1억 2천

월세: 1,269만 원 (vat별도)

관리비: 실사용량에 따라 부과

특이사항: 신축 중, 사용승인 예정, 임대료 조율 가능

현장 방문 및 자세한 문의는 공장네트웍스를 통해 확인해 주세요!

  

5. 공장네트웍스 코멘트

본 물건은 대구 서구 중리동 코너 도로 입지의 신축 공장창고로,
대지 1,818㎡ (550), 임대면적 1,104㎡ (334) 규모의 단층 구조입니다.
층고 9m의 넉넉한 공간과 크레인 설치가 가능한 구조로, 기계·금속·물류 업종 모두 적합합니다.


서대구IC와 인접해 교통 접근성이 뛰어나며, 넓은 마당과 주차 공간으로 대형차 이동이 편리합니다.


현장 방문 및 계약 상담은 공장네트웍스를 통해 문의해 주세요.
공장 규모, 업종 적합성, 전력 및 입주 타이밍까지
전문 컨설턴트가 1:1로 세밀하게 안내해드립니다.

인근 지하철(주변 5km 이내)
2호선 감삼역 970m 2호선 두류역 1,260m 2호선 내당역 1,940m
인근 버스 (주변 500m 이내)
간선 523 220m 간선 320 220m 간선 726 250m 지선 남구2 250m 간선 405 330m 급행 급행5 440m
간선 523(퀸스로드앞·05233)
220m
간선 320(퀸스로드앞·05233)
220m
간선 726(퀸스로드앞(동편)·20636)
250m
지선 남구2(퀸스로드앞(동편)·20636)
250m
간선 405(내당광명아파트·20896)
330m
위치 및 주변시설
편의시설
안전시설
교육시설
지하철
버스
편의점
카페
은행
관공서
학교
학원
병원
약국
영화관
경찰
CCTV
어린이집
유치원
초등학교
중학교
고등학교
대학교
학원
서구의 다른매물
대구 서구 이현동
매매69(부가세 별도)총월세1,050만원
공장 창고 방 3개 / 화장실 3개
대구 서구 중리동
매매205,000
공장 창고 화장실 2개
대구 서구 중리동
보증금4,500만원월세434만원
공장 창고 화장실 2개
대구 서구 비산동
보증금2,500만원월세250만원
개발부지 0㎡ 0평
대구 서구 이현동
보증금5,200만원월세520만원
공장 창고 화장실 2개
대구 서구 중리동
보증금1,400만원월세140만원
공장 창고 화장실 1개
대구 서구 이현동
보증금4,000만원월세460만원
공장 창고 화장실 1개
대구 서구 상리동
보증금2,000만원월세200만원
공장 창고 화장실 1개
대구 서구 중리동
보증금3,300만원월세330만원
공장 창고 화장실 3개
대구 서구 이현동
보증금2,000만원월세170만원
공장 창고 화장실 1개
대구 서구 중리동
보증금3,300만원월세327만원
공장 창고 화장실 2개
대구 서구 이현동
보증금3,300만원월세330만원
공장 창고 화장실 1개
대구 서구 이현동
보증금4,200만원월세420만원
공장 창고 화장실 1개
대구 서구 이현동
보증금2,000만원월세200만원
공장 창고 화장실 1개
대구 서구 이현동
보증금2,600만원월세260만원
공장 창고 화장실 1개
대구 서구 이현동
매매23
공장 창고 화장실 3개
대구 서구 이현동
매매50
공장 창고 화장실 2개
대구 서구 비산동
매매23
공장 창고 방 2개 / 화장실 2개
대구 서구 이현동
매매19
공장 창고 화장실 1개
대구 서구 이현동
매매595,000
개발부지 화장실 3개
담당자 정보
최영근 대표/공인중개사
010-3841-1007
공장네트웍스부동산중개
  • 대표자
    최영근
  • 소재지
    대구광역시 서구 북비산로 129
  • 등록번호
    112-43-06115
  • 대표번호
    010-3841-1007
대구 서구 중리동 신축 공장창고 임대 기계·금속·포장·물류·자동화·다용도 창고형 제조업 추천
보증금12,000월세1,200만원
대구 서구 중리동
공장 창고
대지 1818㎡ 대지 550평
-
지상 : 1층 / 지하 : -층
매물 문의하기
최영근 대표/공인중개사
010-3841-1007
공장네트웍스부동산중개
  • 대표자
    최영근
  • 소재지
    대구광역시 서구 북비산로 129
  • 등록번호
    112-43-06115
  • 대표번호
    010-3841-1007
번역